Účastníci přehlídky si popisy projektů stylizují sami. Organizátor přehlídky neprovádí žádné korektury, ani jazykovou kontrolu. Projekty jsou řazeny podle abecedního pořadí autorů projektů.
Autor:
Martin Sněhota
Název instituce:
Základní umělecká škola, Opava, p.o.
Stručný popis:
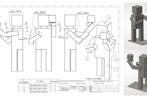
Nedávná rekonstrukce jedné z budov naší školy otevřela nový exteriérový prostor, který se stal inspirací pro vznik unikátní sochařské instalace. Autorkou celého konceptu je sedmnáctiletá žákyně Eliška Jüstelová, která se rozhodla toto místo oživit dílem reflektujícím samotnou podstatu uměleckého vzdělávání. Její návrh pracuje se čtveřicí postav, které reprezentují klíčové obory školy – hudebníka, tanečnici, výtvarníka a herce. Tyto figury nejsou statickými objekty, ale dynamicky využívají architekturu budovy a její zdi, čímž vytvářejí organické propojení mezi uměním a konkrétním prostorem školy.
Cesta od prvotní myšlenky k finálnímu projektu kopírovala profesionální designérský proces. Autorka nejprve pracovala na sérii skic, aby definovala jasné charakterové rysy a pohyby jednotlivých postav. Následovala tvorba zmenšených modelů z polystyrenu, které byly následně fotografovány a za pomoci grafických programů a umělé inteligence převedeny do precizních vizualizací v reálném prostředí. Aby bylo možné ověřit měřítko a působení, byla jedna ze soch vytvořena také ve velikosti 1:1. Celý postup vyvrcholil spoluprací s externím konstruktérem, který na základě autorčiných podkladů vypracoval technickou dokumentaci pro výrobu z plechu. V současné době je projekt kompletně připraven k realizaci a škola hledá cesty k jeho finálnímu zhmotnění. Ideální příležitost vidíme v navázání partnerství se střední či vyšší odbornou školou se zaměřením na strojírenství a kovovýrobu.
Cesta od prvotní myšlenky k finálnímu projektu kopírovala profesionální designérský proces. Autorka nejprve pracovala na sérii skic, aby definovala jasné charakterové rysy a pohyby jednotlivých postav. Následovala tvorba zmenšených modelů z polystyrenu, které byly následně fotografovány a za pomoci grafických programů a umělé inteligence převedeny do precizních vizualizací v reálném prostředí. Aby bylo možné ověřit měřítko a působení, byla jedna ze soch vytvořena také ve velikosti 1:1. Celý postup vyvrcholil spoluprací s externím konstruktérem, který na základě autorčiných podkladů vypracoval technickou dokumentaci pro výrobu z plechu. V současné době je projekt kompletně připraven k realizaci a škola hledá cesty k jeho finálnímu zhmotnění. Ideální příležitost vidíme v navázání partnerství se střední či vyšší odbornou školou se zaměřením na strojírenství a kovovýrobu.
Počet zúčastněných:
1
Věk:
16
- 17
Forma a počet prací zasílaných na přehlídku:
Koláž fotografií a doprovodné texty na výkresech B1 (2ks)
Kdy?
Výstava proběhne
30. 5. – 26. 6. 2026
Co?
Vystavíme všechny soubory výtvarných prací dětí a mládeže
Kde?
Výstava proběhne v Národní galerii Praha, Korzo Veletržního paláce
